
Act for climate, uses, biodiversity and mobility.
Act at every level, in every region and at every stage: consulting, design and implementation, evaluation.

Conception du projet de transformation de la place de la Concorde.
Finaliste, classé 2e

Adapting the city's public spaces
Project management assistance for Bordeaux Métropole's public space development policy.

Development plan for the La Perrière block in Evron (53)
Design and programming of a structuring public space.

Drawing up a vision of the rue de Rivoli for 2030
Urban design brief for the transformation of the Rue de Rivoli by 2030.



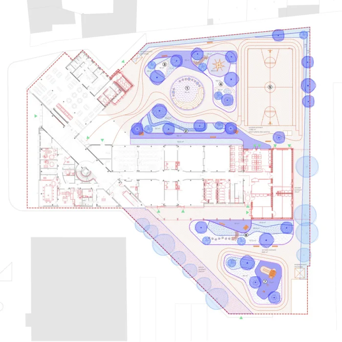
Conception et réalisation de deux cours Oasis pour le groupe scolaire Jean Monnet à Evron

Etudes Espaces publics, Mobilités et Stratégie foncière pour la revitalisation de centres-bourgs ruraux


Development of the Holden block in Croix and conversion of existing buildings
Urban, landscape and environmental project management for the Holden sector.

Development plan for the La Vallée site - Les 3 Suisses
Design, programming, transformation; urban, landscape and environmental project management.

Development of the Domaine de Longchamp.
Analysis of the site's heritage, landscape and usage issues, recommendations for its development and support for stakeholder dialogue.

Schéma directeur d’accessibilité et d’intégration urbaine de l’îlot qui accueille la nouvelle Fondation Cartier